
八月設計師大會 | 火辣辣的日子,當然要來場火辣辣的PK賽啦!
最近這高溫天屬實有點強悍,
天天37°+,
這誰受得住呀
網友紛紛戲稱:
走在路上的我,
與烤肉之間,
就差了把孜然...

那在這么火辣辣的日子,
當然要應景地來場火熱的PK賽啦!

話不多說,
這就給大家奉上南鴻八月份設計師大會內容~
搓搓小手排排坐嘞


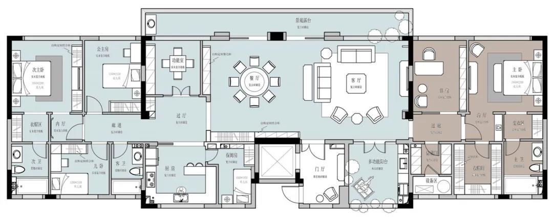
本次PK賽的冠軍得主,是來自我們城西分部廖老師的作品——杭州公館。

- 戶型圖 -


這是一套270方的頂樓大平層戶型,左右對稱,供三代同堂的業主一家居住,因為長輩和晚輩對裝修風格的偏好不同,設計師特意為房子劃分了左右兩種不同style~
- 工地圖 -


- 實景圖 -


屋子的層高足足有3米3,吊頂都細心做了造型,展露典雅的氣質。

▲長輩最愛的穩重大氣“紅木風”
本套案例小鴻也會在之后給到完整的作品介紹,大家可以悄咪咪期待一波啦。


設計一部——招商公園1872

本案是一套精裝房的局改項目,面積為125方,做了整體櫥柜、家具定制及軟裝上的搭配,整個家煥然一新。
- 實景圖 -

客廳沙發背景墻與玄關部分,玄關原本的柜子換成了現在的實木復合柜。

餐廳,一側墻體打薄做了個餐邊柜。

臥室與書房,臥室飄窗做了邊柜,書房則是實用性滿分的組合柜。
設計四部——世貿麗晶城

本案為125方現代輕奢風格的作品,選用的是1399套餐。
- 戶型圖 -


從原戶型看,存在玄關放不下鞋柜、原儲藏室空間雞肋、朝北陽臺用處不大等問題,設計師均一一進行了調整。
- 實景圖 -

▲點擊圖片可查看作品詳情哦
濱江分部——榮星君佳苑

本案為114方的回遷房項目,業主為一家三口,設計師結合夫妻二人不同的空間需求對原始戶型進行了優化。
- 戶型圖 -


- 工地圖 -

臨平分部——贊成香頌

本案為現代北歐風格的作品,設計上簡單清爽,布局也以實用為主,性價比很高。
- 實景圖 -







▲李總為上月優勝設計師頒獎
會議結尾,李總做了總結講話,他強調,設計師應牢牢樹立“口碑意識”,更加注重用戶體驗,努力做好全方位的品質交付,方能讓業績更上一層樓。
免費
免費申請戶型規劃
專屬設計師免費1對1全程服務
已經有3777人申請
24小時免費咨詢電話
400-8800-618
你家預算
108080元